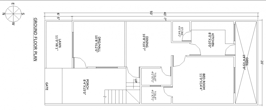
Ground floor row house plan drawing in dwg AutoCAD file.
Description
Ground floor row house plan drawing in dwg AutoCAD file. This drawing includes the row house ground floor plan with bedroom, kitchen, store, toilet, dining area, drawing room, porch, and lawn with dimensions.
Uploaded by:
Eiz
Luna

