Traditional bungalow elevation detail drawing in dwg AutoCAD file
Description
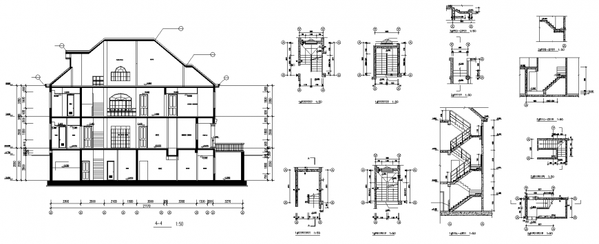
Traditional bungalow elevation detail drawing in dwg AutoCAD file. This drawing includes the detail sectional elevation of the traditional concept bungalow with detail dimensions. Staircase detail with top view plan, elevation and sectional elevation with dimensions.
Uploaded by:
Eiz
Luna

