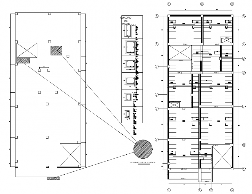
Foundation detail drawing of the showroom in dwg AutoCAD file.
Description
Foundation detail drawing of the showroom in dwg AutoCAD file. This drawing includes the detail foundation layout plan of the showroom with detail section line and dimensions. Column detail drawing with dimensions, column placement layout plan with dimensions.
File Type:
DWG
File Size:
147 KB
Category::
Construction
Sub Category::
Construction Detail Drawings
type:
Gold
Uploaded by:
Eiz
Luna

