Kitchen structural detail plan and elevation 2d view layout file in autocad format
Description
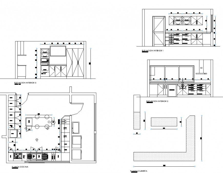
Kitchen structural detail plan and elevation 2d view layout file in autocad format, plan view detail, wall and floorings detail, platform detail, gas-stove detail, cabinet and shelves detail, door and window detail, dimension detail, wash-basin detail, exhauster chimney detail, refrigerator detail, elevation detail, not to scale drawing, etc.
File Type:
DWG
File Size:
591 KB
Category::
Construction
Sub Category::
Kitchen And Remodeling Details
type:
Gold
Uploaded by:
Eiz
Luna

