Planning of commercial school detail dwg file
Description
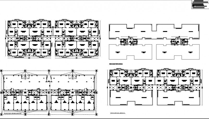
Planning of commercial school detail dwg file, dimension detail, naming detail, cut out detail, brick wall detail, flooring detail, not to scale detail, stair detail, ground floor to terrace floor detail, slope direction detail, projection detail, etc.
Uploaded by:
Eiz
Luna

