RCC foundation detail layout of house in dwg AutoCAD file.
Description
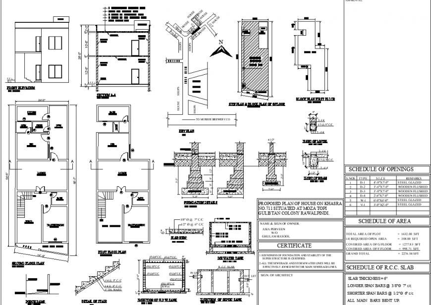
RCC foundation detail layout of house in dwg AutoCAD file. This file includes the front elevation of the house, sectional elevation, detail layout plan, footing detail, roof detail, slab column corner detail, and wall construction detail.
File Type:
DWG
File Size:
130 KB
Category::
Construction
Sub Category::
Reinforced Cement Concrete Details
type:
Gold
Uploaded by:
Eiz
Luna
