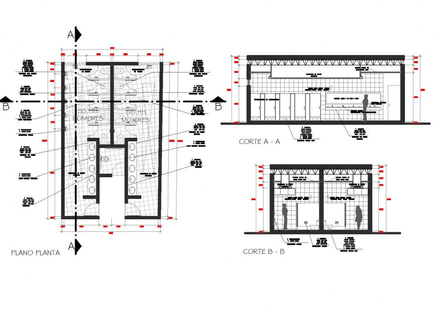
Architectural detail of restroom layout file
Description
Architectural detail of restroom layout file, section line detail, center line detail, dimension detail, people detail, sanitary detail, section A-A detail, door window detail, naming detail, section B-B detail, hatching detail, steel frame detail, etc.
Uploaded by:
Eiz
Luna

