Office structure and false ceiling construction details dwg file
Description
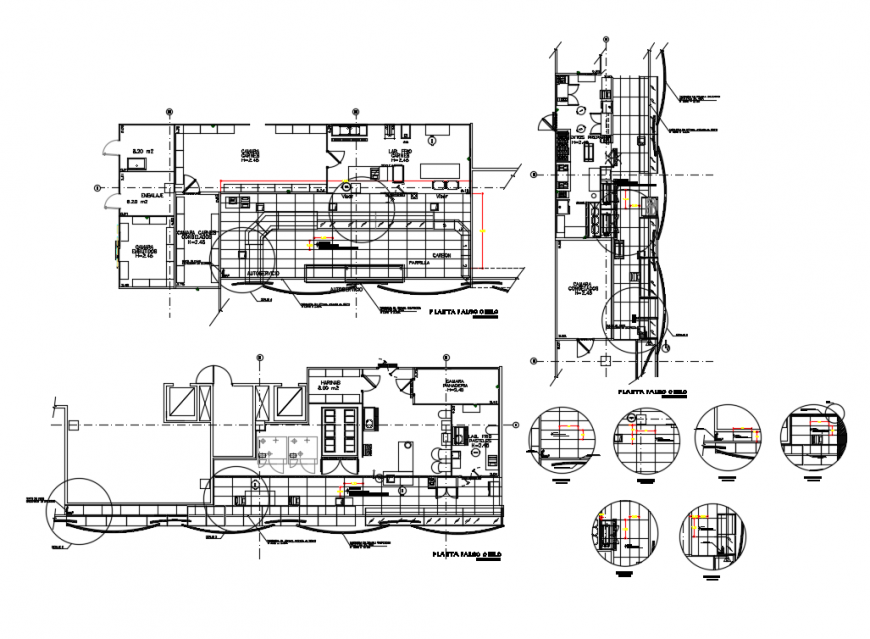
Office structure and false ceiling construction details that includes a detailed view of office structure with floor construction, column composed of laminated profiles u, support reinforcement of pre-molded slab, pre-molded slabs of h., steel pedestals, baldosones 60 cm. * 60 cm, galvanized steel tensioners, two-dimensional structure of profiles t and c of 100mm., steel plate anchor and much more of ceiling details.
Uploaded by:
Eiz
Luna

