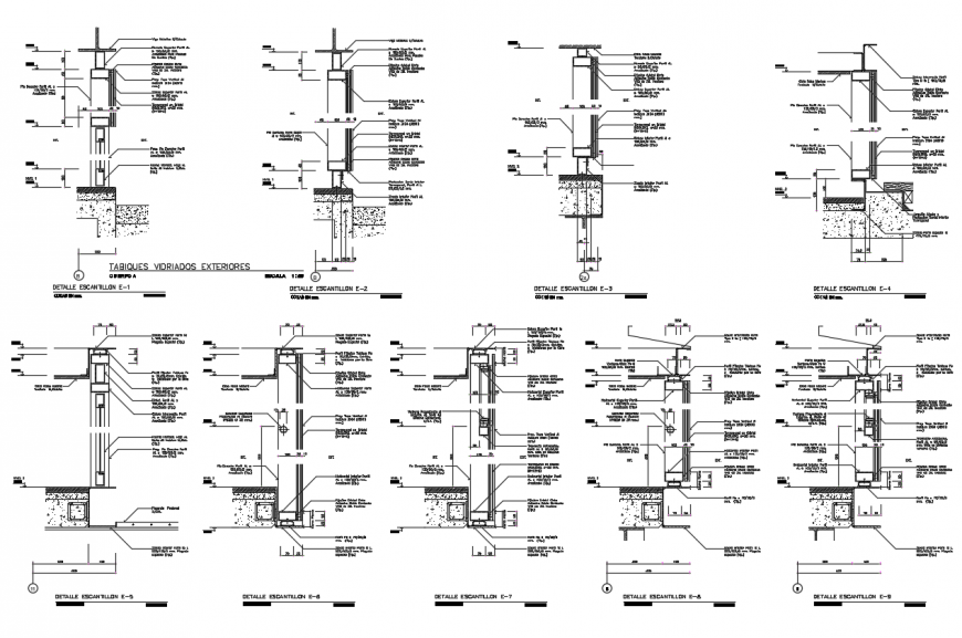
Slotted faced with column view with its elevation dwg file
Description
Slotted faced with column view with its elevation dwg file in different types of elevation with view of base and concrete view with iew of area and view of concrete area view with base with important detail view.
File Type:
DWG
File Size:
448 KB
Category::
Construction
Sub Category::
Concrete And Reinforced Concrete Details
type:
Gold
Uploaded by:
Eiz
Luna

