Construction design with foundation plan and its detail view dwg file
Description
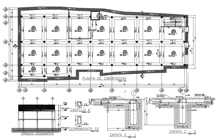
Construction design with foundation plan and its detail view dwg file in foundation plan with view of area view wall and wall support and column position view with sectional detail view of column and beam joint with corner joint with important dimension.
File Type:
DWG
File Size:
2.8 MB
Category::
Construction
Sub Category::
Concrete And Reinforced Concrete Details
type:
Gold
Uploaded by:
Eiz
Luna

