Different elevation of feed mill civil with construction view dwg file
Description
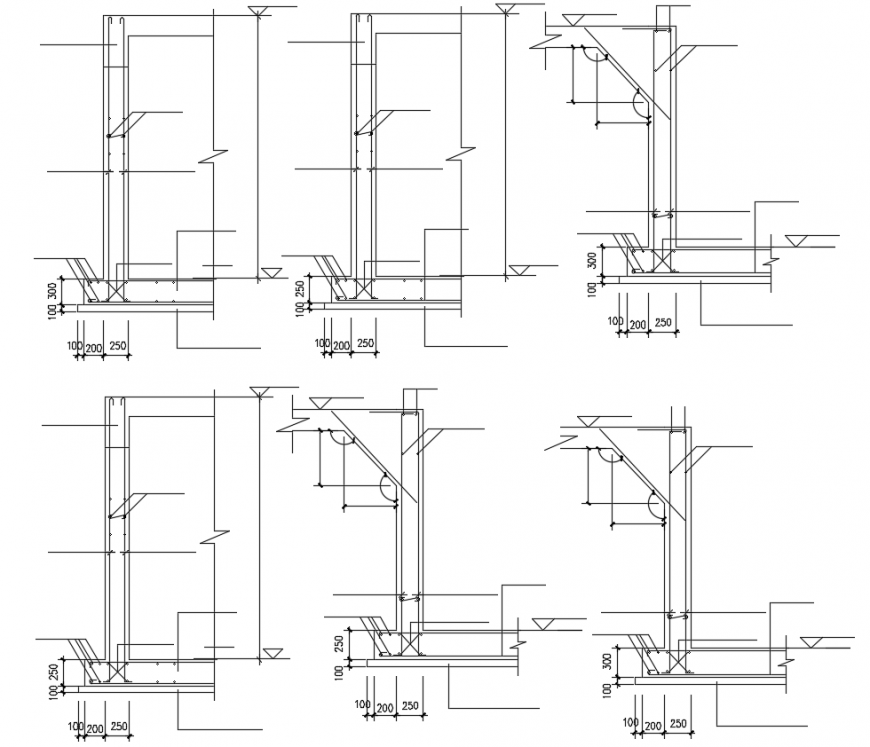
Different elevation of feed mill civil with construction view dwg file in elevation with view of vertical and horizontal view of column and beam position and necessary vertical and horizontal dimension in view.
Uploaded by:
Eiz
Luna

