Open plan living area design layout file
Description
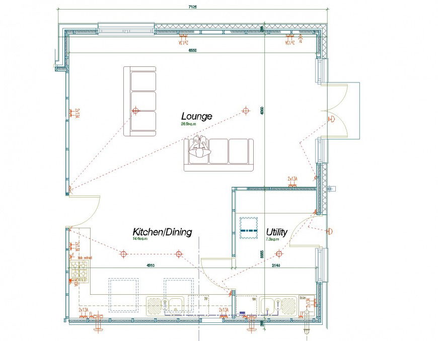
Open plan living area design layout file, dimension detail, naming detail, furniture detail in sofa, door and window detail, light point detail, etc.
File Type:
DWG
File Size:
140 KB
Category::
Dwg Cad Blocks
Sub Category::
Cad Logo And Symbol Block
type:
Gold
Uploaded by:
Eiz
Luna

