LOGIN
HOME
CATEGORIES
UPLOAD FILE
PRICING
HOUSE PLAN
ABOUT US
CONTACT US
Contemporary Home Design In DWG File
Home
Categories
Architecture
House Plan
Contemporary Home Design In DWG File
Uploaded by:
helly
panchal
View Profile
View Profile
Description
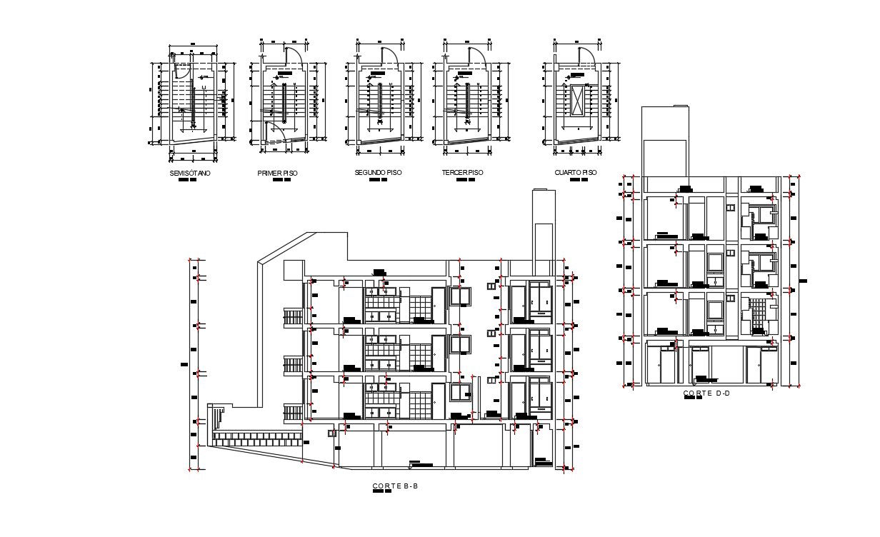
Contemporary Home Design In DWG File in a layout plan , bedroom, bathroom, kitchen, living room,Contemporary Home Design In DWG File
File Type:
DWG
File Size:
374 KB
Category::
Architecture
Sub Category::
House Plan
type:
Gold
Uploaded by:
helly
panchal
View Profile
Download
Add to libary
find Latest
Related
Files