X-ray room detail elevation and plan layout file
Description
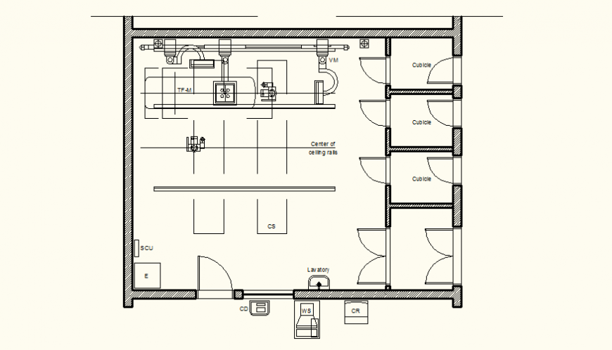
X-ray room detail elevation and plan layout file, hatching detail, furniture detail, door window detail, top view detail, etc.
Uploaded by:
Eiz
Luna
X-ray room detail elevation and plan layout file, hatching detail, furniture detail, door window detail, top view detail, etc.
Uploaded by:
Luna