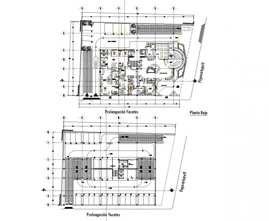
Ground floor and terrace floor office plan autocad file
Description
Ground floor and terrace floor office plan autocad file, centre line plan detail, dimension detail, naming detail, ramp detail, cut out detail, leveling detail, landscaping detail in tree and plant detail, furniture detail in door, window, table and chair detail, etc.
Uploaded by:
Eiz
Luna

