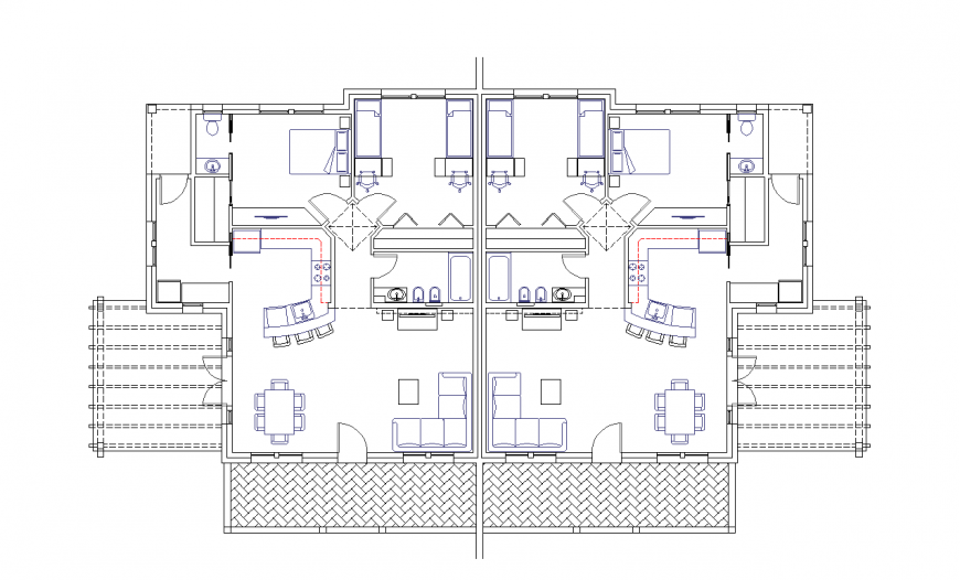
Design of house plan with architecture view dwg file
Description
Design of house plan with architecture view dwg file in plan with view of area distribution with wall and bedroom, kitchen and washing area view with dining and drawing area view with door position in design view.
Uploaded by:
Eiz
Luna

