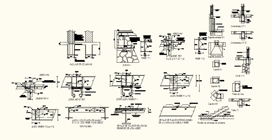
Beam to column angle connection detail plan autocad file
Description
Beam to column angle connection detail plan autocad file, dimension detail, naming detail, hatching detail, reinforcement detail, ,I angle section detail, nut bolt detail, welding detail, stair detail, top view detail, side elevation detail, front detail, beam detail, concreting detail, etc.
Uploaded by:
Eiz
Luna

