Foundation plan with slab detail view with plan dwg file
Description
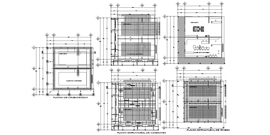
Foundation plan with slab detail view with plan dwg file in foundation plan with view of wall and wall support view with view of column position view and slb plan detail in design of construction.
Uploaded by:
Eiz
Luna

