Isometric plumbing toilet plan autocad file
Description
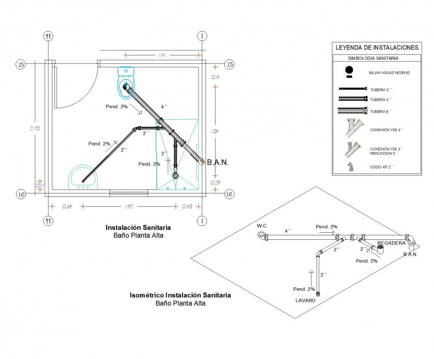
Isometric plumbing toilet plan autocad file, legend detail, dimension detail, naming detail, centre line plan detail, pipe line detail, bath tub detail, water close detail, sink detail, lock system detail, soil line detail, waste water pipe lien detail, etc.
File Type:
DWG
File Size:
1.3 MB
Category::
Interior Design
Sub Category::
Bathroom Interior Design
type:
Gold
Uploaded by:
Eiz
Luna

