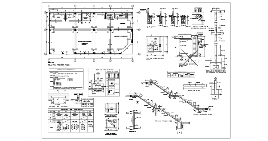
Foundation plan with stair case detail with construction view dwg file
Description
Foundation plan with stair case detail with construction view dwg file in plan with view of area view ith view and view of wall and column position view with stair case view with necessary dimension.
Uploaded by:
Eiz
Luna

