Bathroom all sided sectional and plan details dwg file
Description
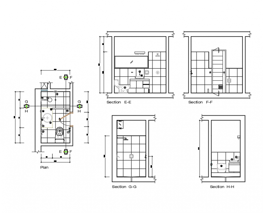
Bathroom all sided sectional and plan details that includes a detaild view of all sided sections details, plan details, wall design and section, wall dimensions, sanitary ware installation, plumbing details and much more of bathroom project.
File Type:
DWG
File Size:
145 KB
Category::
Interior Design
Sub Category::
Bathroom Interior Design
type:
Gold
Uploaded by:
Eiz
Luna
