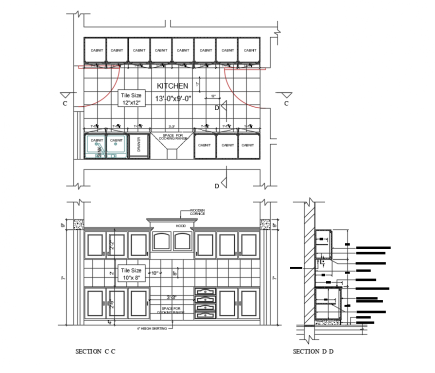
Gallery kitchen plan and section details with interior dwg file
Description
Gallery kitchen plan and section details with interior that includes a detailed front sectional view, side sectional view, plan details with furniture details, plumbing details, sanitary equipment installation details and much more of kitchen project.
Uploaded by:
Eiz
Luna

