Picnic garden bench elevation, section and plan details dwg file
Description
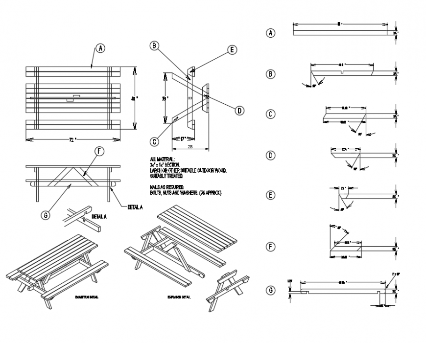
Picnic garden bench elevation, section and plan details that includes a detailed front view, side view, top view, bench dimensions, joints, wooden stick joints and much more of bench details.
Uploaded by:
Eiz
Luna

