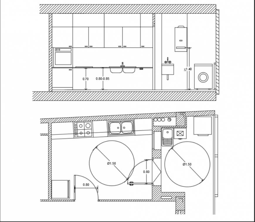
House kitchen section and layout plan cad drawing dwg file
Description
House kitchen section and layout plan cad drawing that includes a detailed view of main entry door, electronics accessories, furniture view, interior view, dimensions, sanitary view, doors details, plumbing details and much more of kitchen project.
Uploaded by:
Eiz
Luna
