Office building temporary expositions details cad drawing dwg file
Description
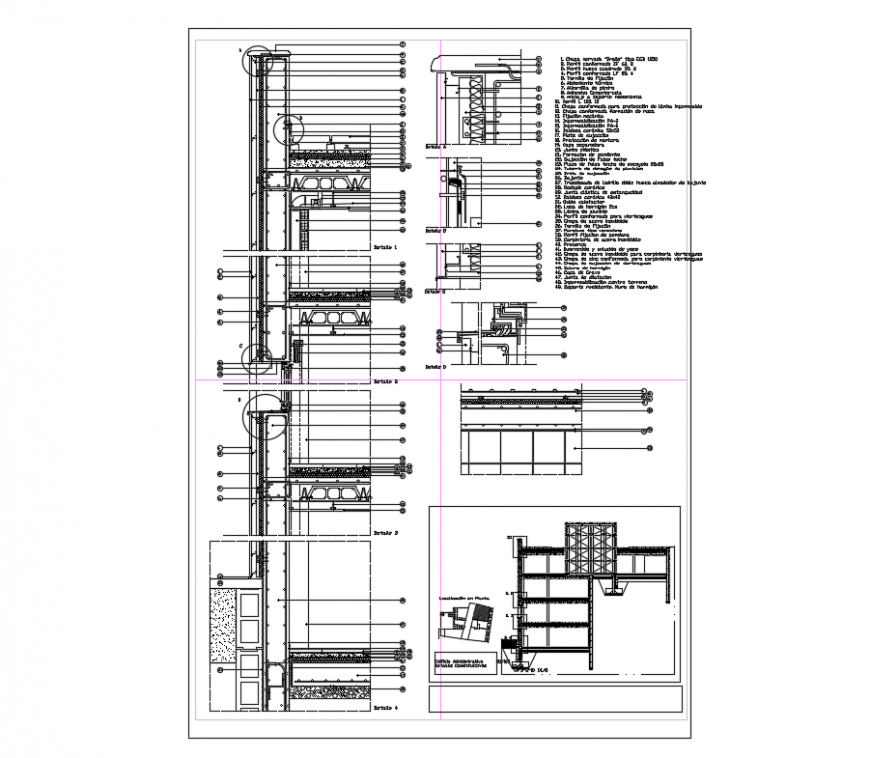
Office building temporary expositions details cad drawing that includes a detailed view of cover protection hm 20, separating layer, thermal insulation. "isover" panel type pf, formed sheet for alabardilla, shaped plate for bead seaming, waterproofing pa-2, waterproofing, slope formation layer, elastic expansion joint, aluminum joinery stud, angular anchor, aluminum joinery crosspiece, anchoring to allow movement by dilation, anchor screw, veneer, elastic gasket for glass, elastic sealing gasket, double sheet glass, Water-resistant concrete treatment, false ceiling of plaster plates, false ceiling fastening, profile, ceramic tile, cement-glue adhesive and much more of building construction.
File Type:
DWG
File Size:
1.6 MB
Category::
Construction
Sub Category::
Concrete And Reinforced Concrete Details
type:
Gold
Uploaded by:
Eiz
Luna

