Multi-story apartment house building front sectional view details dwg file
Description
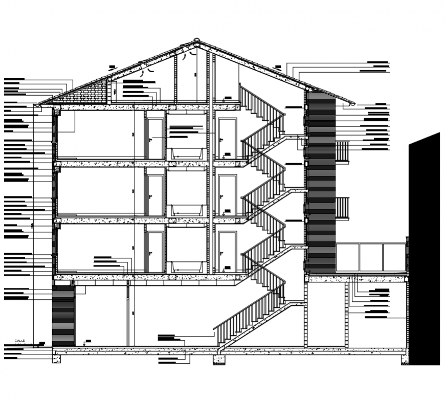
Multi-story apartment house building front sectional view details that includes a detailed view of flooring view, wall section, wall dimensions, floor vise staircase sectional view, doors and windows view, roof or terrace view, covers closure type 1 and 2, soil burried wall closure type 1 and 2, exterior solera, holes, interior partition, granite veneer of the country with steel supports, halfeneisen type, Brick partition, 8cm, plaster plastering 1cm, Concrete wall 15cm and much more of section details.
Uploaded by:
Eiz
Luna

