Top view layout plan of kitchen

Top view layout plan of kitchen
Profile

Uploaded by:

Eiz

Luna

Description

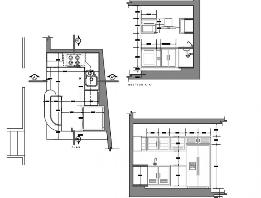
Top view layout plan of kitchen, various layouts are shown, complete furniture detailing of kitchen

Profile

Uploaded by:

Eiz

Luna

find Latest

Related Files

WhatsApp Chat