LOGIN
HOME
CATEGORIES
UPLOAD FILE
PRICING
HOUSE PLAN
ABOUT US
CONTACT US
Bank Lay-out Detail
Home
Categories
Architecture
Bank Drawing
Bank Lay-out Detail
Uploaded by:
Priyanka
Patel
View Profile
View Profile
Description
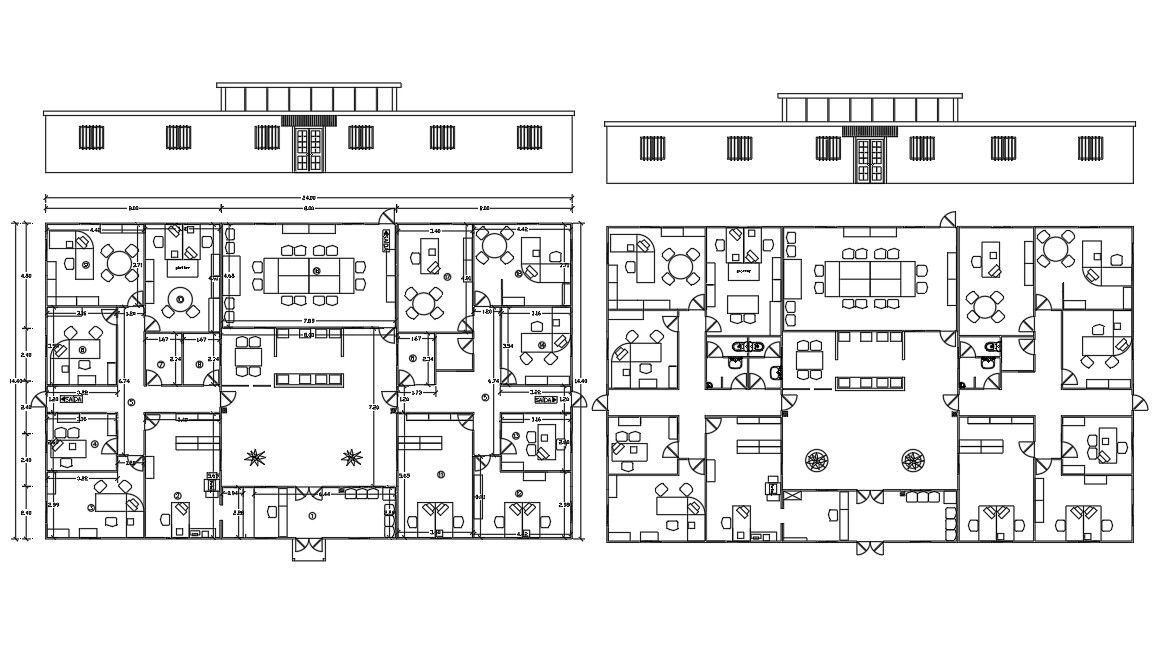
Bank Lay-out Detail DWG file, Bank Lay-out Detail Design. A Customer service office, banking hall, operation department, work station and waiting area of bank design.
File Type:
Autocad
File Size:
319 KB
Category::
Architecture
Sub Category::
Bank Drawing
type:
Free
Uploaded by:
Priyanka
Patel
View Profile
Download
Add to libary
find Latest
Related
Files