Educational institution layout details
Description
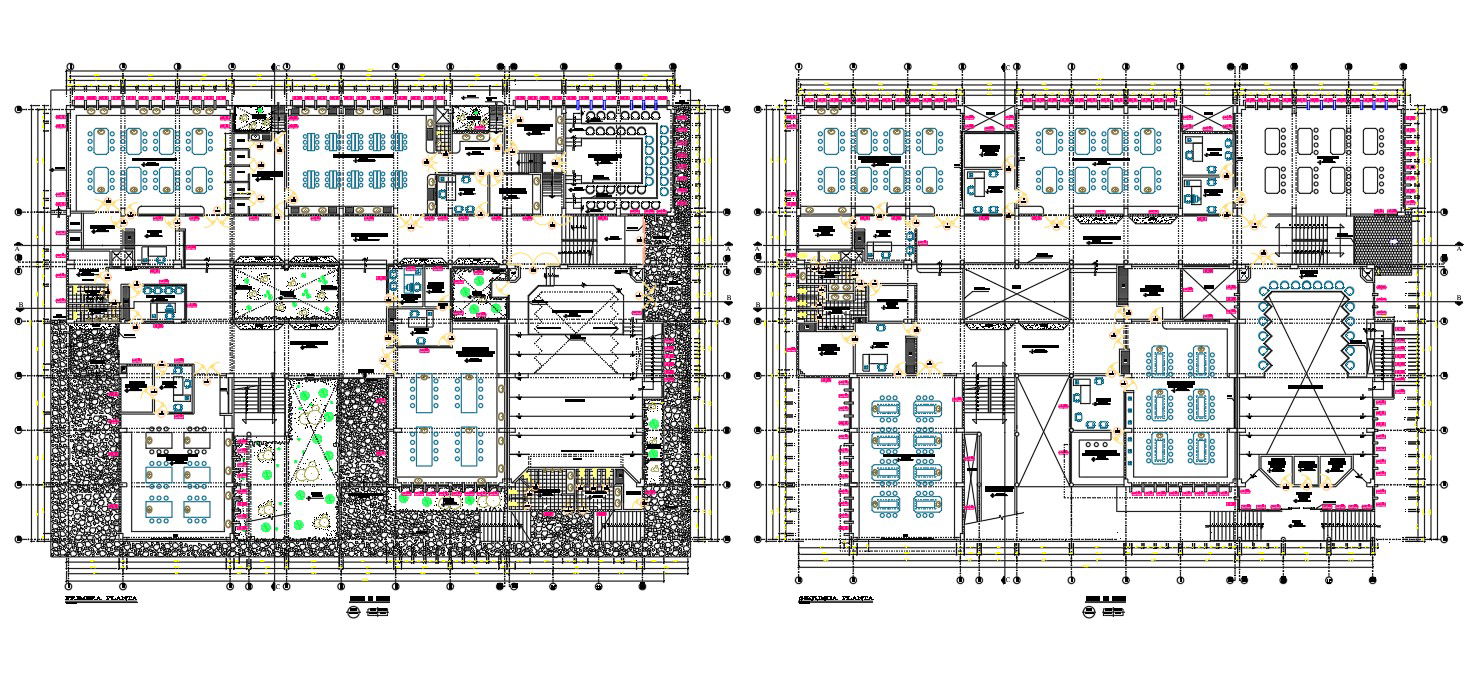
Educational institution layout details in a class room, teacher's room, computer lab, laboratory room, garden ,toilet details, Educational institution layout design drawn in
autocad format.
Uploaded by:
helly
panchal

