Details of a loft mezzanine concrete details dwg file
Description
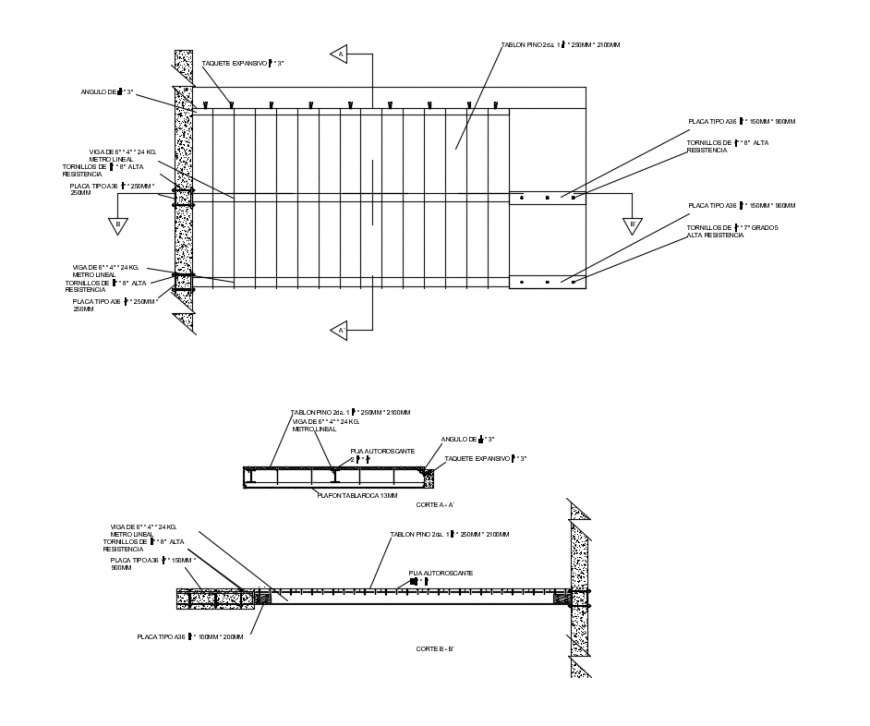
Details of a loft mezzanine concrete details that includes a detailed view of expansive taquete 1/2 "* 3", angle of 5/16 * 3 ", beam of 6 "* 4" * 24 kg. lineal meter, 5/8 "screws * 8" high strength, plate type a36 1/2 "* 250mm * 250mm and much more of construction details.
Uploaded by:
Eiz
Luna

