Market store facade section with constructive details dwg file
Description
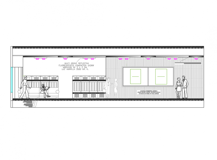
Market store facade section with constructive details that includes a detailed view of flooring view, wall construction, balcony view, doors and windows view, memory of materials, footings details, staircase construction and sectional details, steps details, dimensions, column view, beam construction, covers closure type 1 and 2, soil burried wall closure type 1 and 2, exterior solera, holes, interior partition, granite veneer of the country with steel supports and much more of store section.
Uploaded by:
Eiz
Luna

