Two flooring semi ditched house elevation, section and layout plan details dwg file
Description
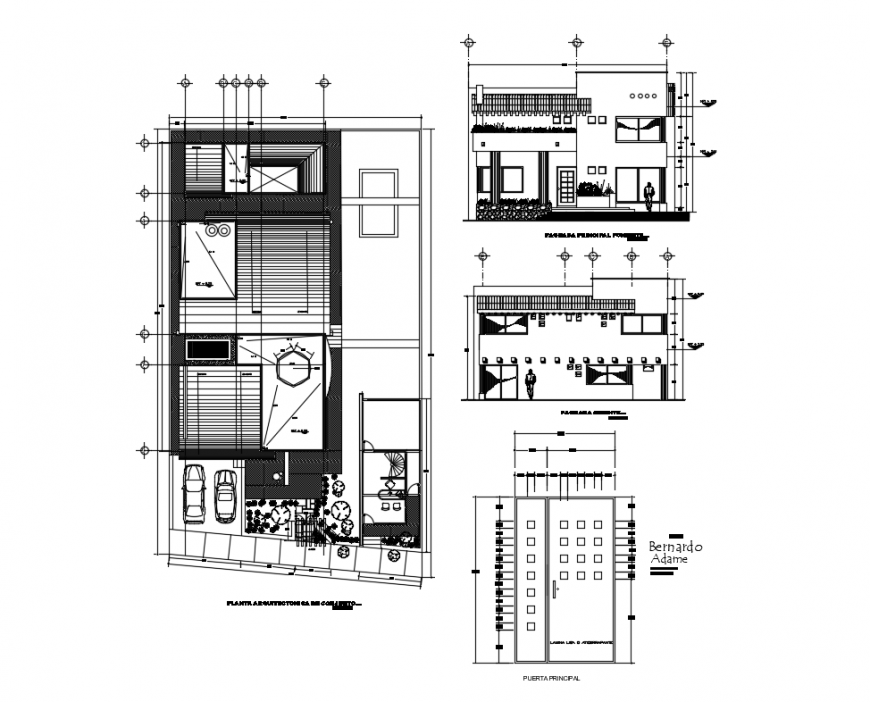
Two flooring semi ditched house elevation, section and layout plan details that includes a detailed view of front elevation view, front and back sectional view, side sectional view, flooring view, doors and windows view, staircase view, balcony view, wall design, dimensions, roof or terrace view, car parking view, layout plan details with main entry door, mini garden, car parking view, drawing room, living room, family hall, kitchen, dining area, indoor staircases, laundy area, balcony, bedroom, master bedroom, toilets and bathroom, indoor doors, furniture details and much more of house details.
Uploaded by:
Eiz
Luna

