Science laboratory design
Description
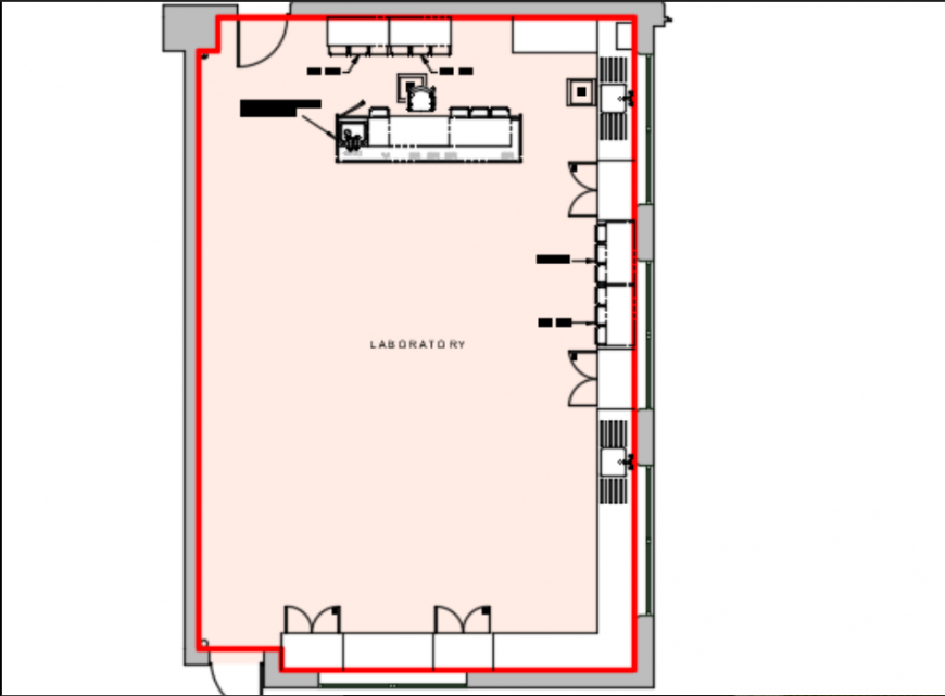
Science laboratory design,layout plan of a laboratory, each and every detail required is shown in this file , different departments , area etc
Uploaded by:
Eiz
Luna
Science laboratory design,layout plan of a laboratory, each and every detail required is shown in this file , different departments , area etc
Uploaded by:
Luna