Lift Design elevation and section autocad file
Description
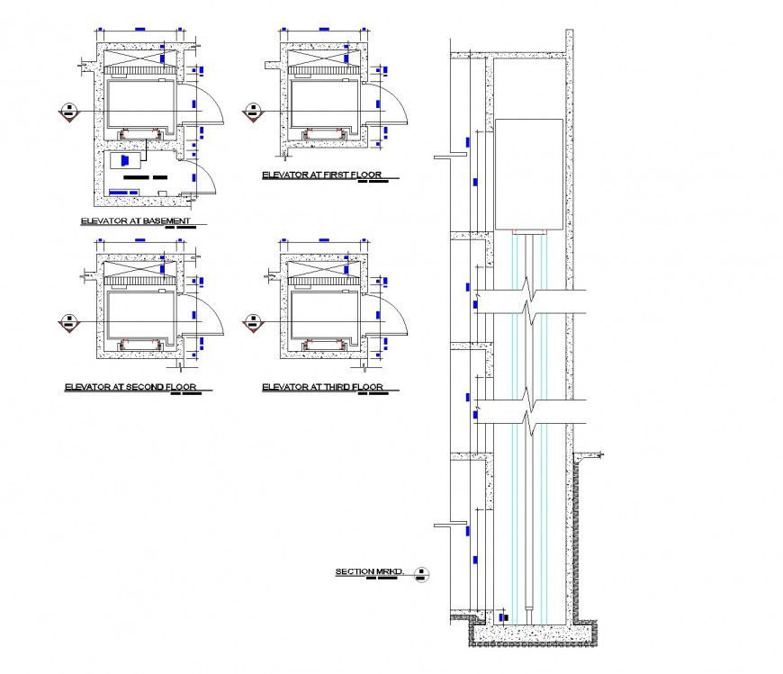
Lift Design elevation and section autocad file, section lien detail, dimension detail, naming detail, concrete mortar detail, front elevation detail, section A-A’ detail, section B-B’ detail, etc.
File Type:
DWG
File Size:
57 KB
Category::
Mechanical and Machinery
Sub Category::
Elevator Details
type:
Gold
Uploaded by:
Eiz
Luna

