College campus plan view detail elevation layout file
Description
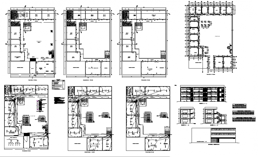
College campus plan view detail elevation layout file, stair detail, class room detail, office detail, furniture detail, specification table detail, door and window detail, front elevation detail, hatching detail, dimension detail, etc.
Uploaded by:
Eiz
Luna

