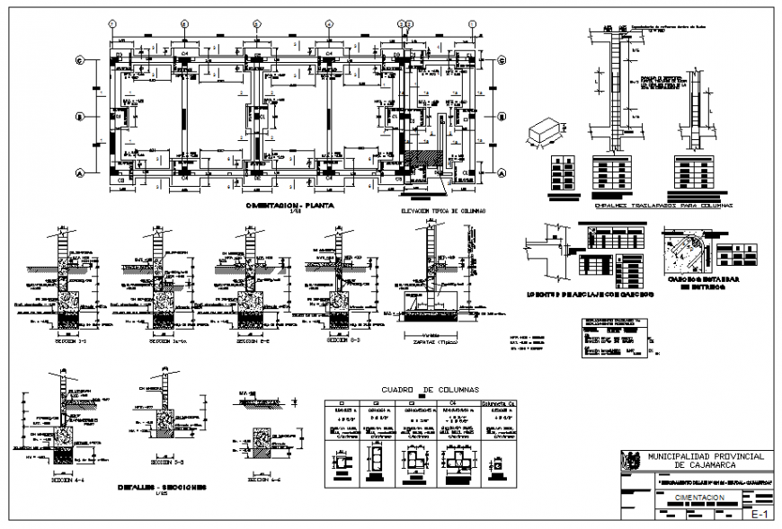
Foundation structure detail elevation dwg file
Description
Foundation structure detail elevation dwg file, reinforcement detail, concreting detail, dimension detail, specification table detail, cut out detail, plan view detail, hatching detail, over lapping detail, stirrups detail, section line detail, scale detail, section detail, etc.
Uploaded by:
Eiz
Luna

