Lift and elevators detail structure layout file
Description
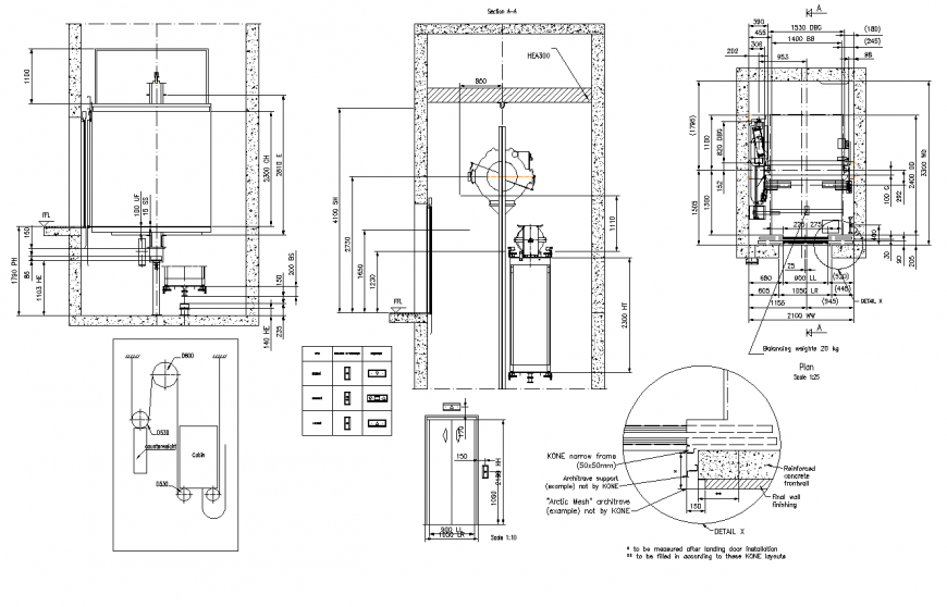
Lift and elevators detail structure layout file, scale 1:10 detail, concreting detail, cable detail, specification detail, dimension detail, plan view detail, section line detail, section A-A detail, center line detail, hatching detail, concrete reinforced wall detail, wall finishing detail, etc.
File Type:
DWG
File Size:
193 KB
Category::
Mechanical and Machinery
Sub Category::
Elevator Details
type:
Gold
Uploaded by:
Eiz
Luna

