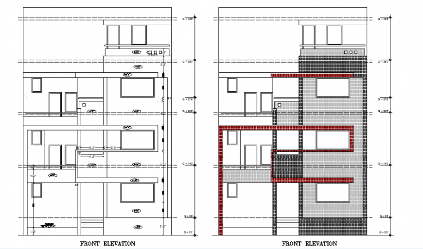
Front elevation one family house plan
Description
Front elevation one family house plan, leveling detail, dimension detail, furniture detail in door and window detail, hidden line detail, etc.
Uploaded by:
Eiz
Luna
Front elevation one family house plan, leveling detail, dimension detail, furniture detail in door and window detail, hidden line detail, etc.
Uploaded by:
Luna