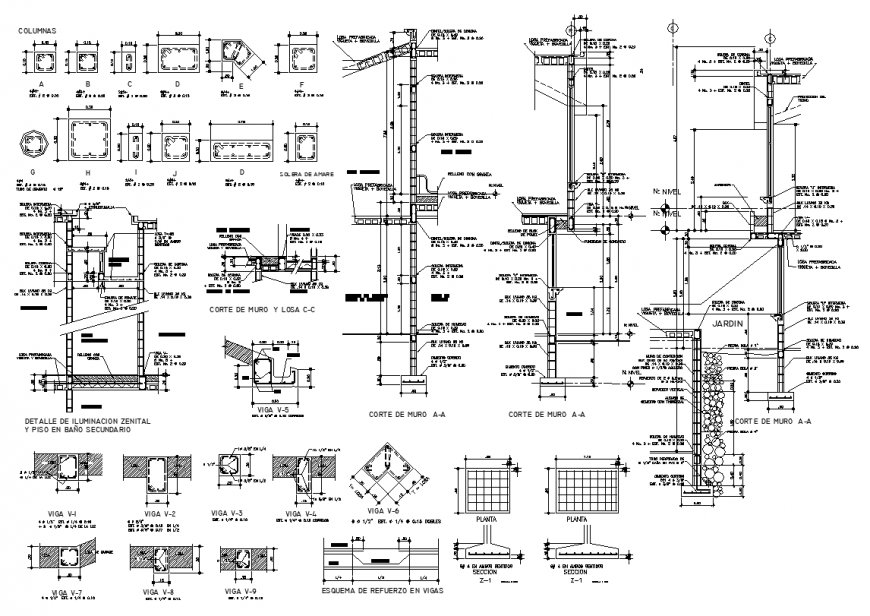
Walls sectional plan and column detail elevation layout file
Description
Walls sectional plan and column detail elevation layout file, roof detail, floor level detail, dimension detail, reinforcement detail, cover detail, concreting detail, isolated footing detail, section line detail, top elevation detail, hook and bends detail, plan view detail, section A-A detail, hidden line detail, cut out detail, etc.
Uploaded by:
Eiz
Luna

