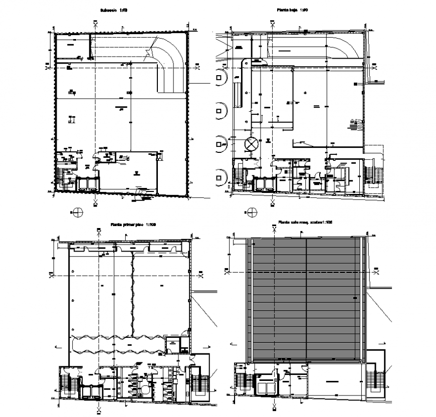
Office building detail elevation and plan view autocad file
Description
Office building detail elevation and plan view autocad file, stair detail, door and window detail, scale 1:100 detail, hatching detail, furniture detail, section line detail, dimension detail, floor level detail, leveling detail, etc.
Uploaded by:
Eiz
Luna

