Library Plan In DWG File

Library Plan In DWG File
Profile

Uploaded by:

helly

panchal

Description
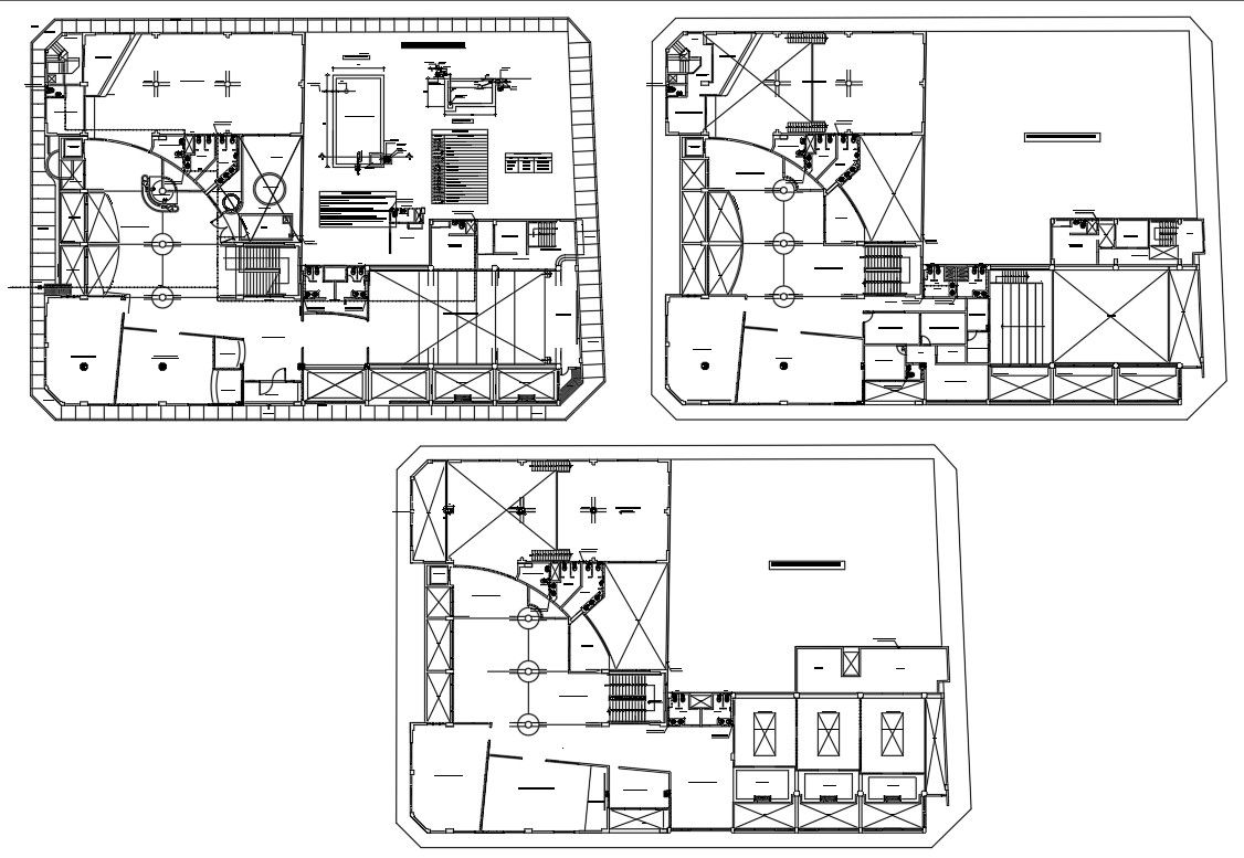
Library Plan In DWG File which shows reception, waiting area, reading room, elder reading room, terrace plan, tank plan, elevator detail, stair detail with dimensions.
Profile

Uploaded by:

helly

panchal

find Latest

Related Files

WhatsApp Chat