Concrete ceiling constructive structure details of office dwg file
Description
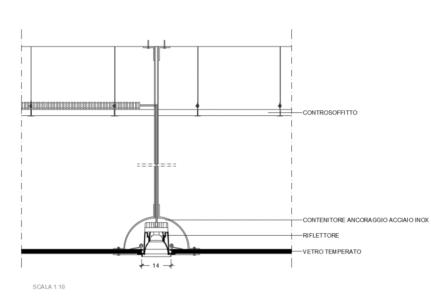
Concrete ceiling constructive structure details of office that includes a detailed view of ceiling, stainless steel anchorage container, reflector, tempered glass and much more of ceiling details.
Uploaded by:
Eiz
Luna

