Wooden Pergola Design In AutoCAD Drawings
Description
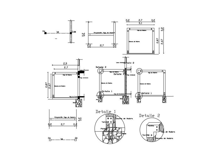
Wooden Pergola Design In AutoCAD Drawings which shows roof and Ceiling, construct steel, R.C.C, and Wooden
Materials.
File Type:
DWG
File Size:
85 KB
Category::
Dwg Cad Blocks
Sub Category::
Wooden Frame And Joints Details
type:
Gold
Uploaded by:
Priyanka
Patel
