Silo elevation with architectural design of industrial area dwg file
Description
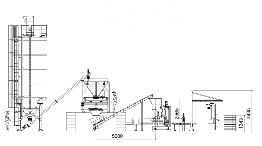
Silo elevation with architectural design of industrial area dwg file in elevation with silo detail,silo support detail,silo operating detail with operator,stair detail,batching plant system detail,hopper detail,necessary dimension,etc.
Uploaded by:
Eiz
Luna

