Curtain walls constructive sectional details dwg file
Description
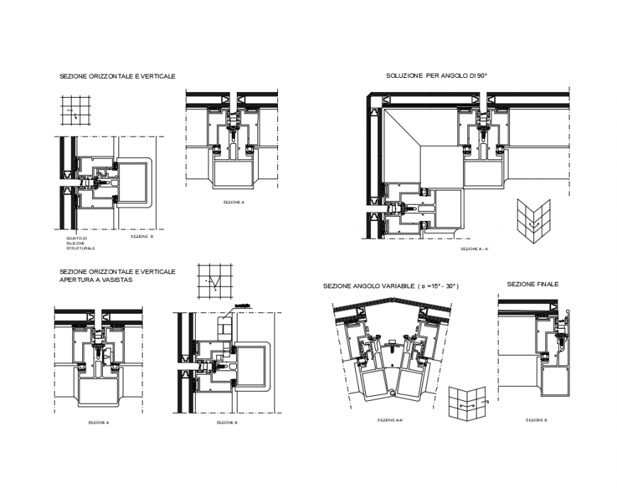
Curtain walls constructive sectional details that includes a detailed view of memory of materials, footings details, column view, beam construction, covers closure type, soil burried wall closure , exterior solera, holes, interior partition, granite veneer of the country with steel supports, halfeneisen type, Brick partition, plaster plastering, Concrete wall and much more of section details.memory of materials, footings details, column view, beam construction, covers closure type, soil burried wall closure , exterior solera, holes, interior partition, granite veneer of the country with steel supports, halfeneisen type, Brick partition, plaster plastering, Concrete wall and much more of section details.
Uploaded by:
Eiz
Luna
