Stair Section Detail In DWG File

Stair Section Detail In DWG File
Profile

Uploaded by:

Priyanka

Patel

Description
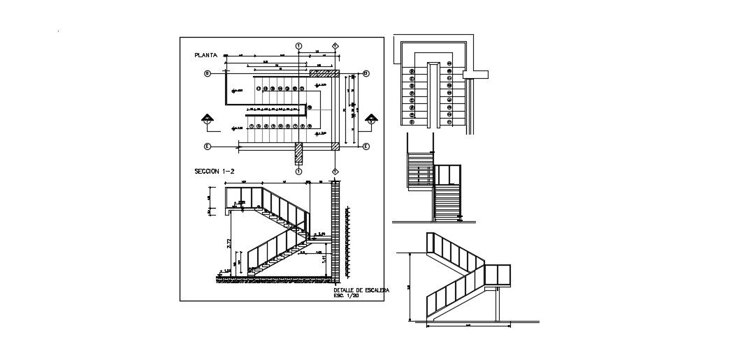
Stair Section Detail In DWG File which shows width, the height of the staircase, It also includes detail dimensions of railing, wooden and steel frame details.
Profile

Uploaded by:

Priyanka

Patel

find Latest

Related Files

WhatsApp Chat