Luxuries city salon store layout plan cad drawing details dwg file
Description
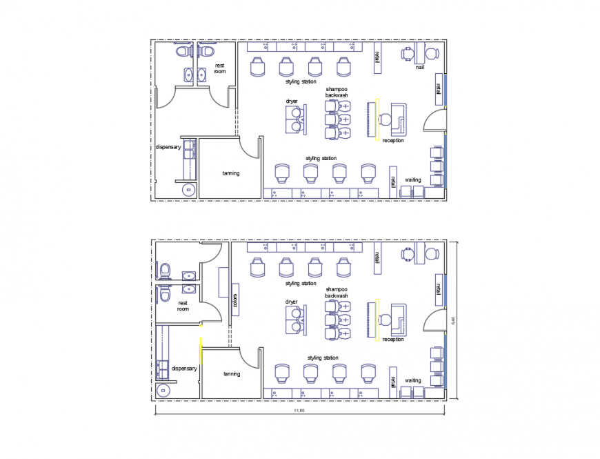
Luxuries city salon store layout plan cad drawing details that includes a detailed view of main entry gate, reception area, waiting area, cutting area, waiting area, rest room, styling station, shampoo area, dryer, dispensory, staff room, massage room, color station, stoarge, wash basins, passage, dimensions details and much more of salon store details.
File Type:
DWG
File Size:
554 KB
Category::
Interior Design
Sub Category::
Showroom & Shop Interior
type:
Gold
Uploaded by:
Eiz
Luna

