Religious church top view plan cad drawing details dwg file
Description
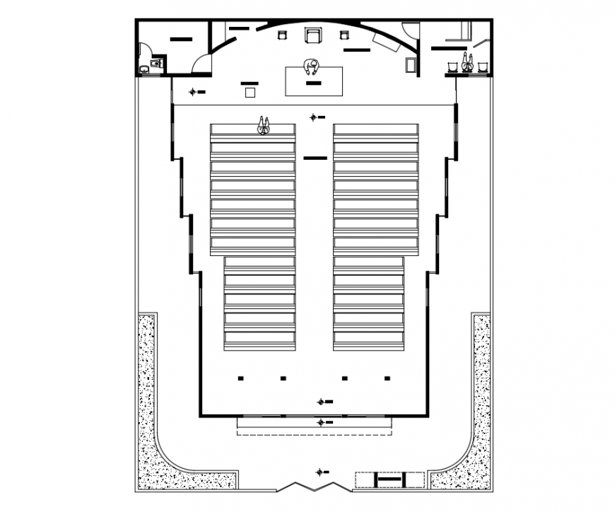
Religious church top view plan cad drawing details that includes a detailed view of front entry gate, two sided mini garden, passage, side walk area, prayer hall seating chairs, god sculpture area, admin offices, sanitary facilities, interior details, furniure details and much more of church plan.
Uploaded by:
Eiz
Luna

