College hall with sanitary vertical section and plan cad drawing details dwg file
Description
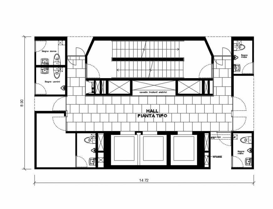
College hall with sanitary section and plan cad drawing details that includes a detailed view of main entry door, toilets for girls, toilets for biys, toilets for staff, prayer hall, indoor doors, indoor staircases, dimensions details, passage, waiting area furniture, interior details, vertical distribution area, water cascading backdrop, security ladder, central waiting area and much more of college layout plan details.
Uploaded by:
Eiz
Luna
