Slab section plan layout file
Description
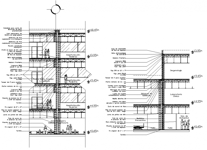
Slab section plan layout file, leveling detail, dimension detail, steel framing detail, naming detail, reinforcement detail, bolt nut detail, furniture detail in door and window detail, etc.
Uploaded by:
Eiz
Luna

